在地产圈,“销冠”楼盘代表人气的聚集,意味着购房者对它的认可。
融创地产自进驻长春以来,旗下楼盘融创御湖宸院、融创洋浦壹号多次获得“销冠”楼盘的称号,融创御湖宸院更是上演了四开四罄的热销故事。
近日,融创旗下另一项目,融创大河宸院即将开盘,是否会延续辉煌,让我们一探究竟。
融创大河宸院,位于目前最受关注的净月区南临河街板块,堪称长春顶级配套板块,吸引众多品牌房企,如融创、保利、龙湖等房企“扎堆”而建,其楼面价更是一路上涨,周边很多地块的楼面价都在5800元/平以上,甚至还出现多个6字头地块。到底是怎样的潜力,让这个板块备受瞩目呢?答:名校、轨交、公园、商圈全有。

王牌配套
名校地铁、公园商圈全有
区域内有两所名校,都临近融创大河宸院,其中距离项目地仅400米的东师华蕴学校,已经投入使用;而距离融创大河宸院1000米的东师慧泽学校,是目前净月最大的新学校,由东北师大附中统一管理,涵盖从幼儿园到高中,东师全系公办校,预计2021年建成投入使用。
轨交作为楼盘价值的加分项,不可或缺。长春轻轨4号线南延长线(预计2022年投入使用),途经融创大河宸院,而项目不远处,还有轻轨6号线在建,双轨交通不仅把净月和主城区连在一起,还提供了更多的出行选择。

在项目旁边,还紧邻正在建设的伊通河生态公园,规划8个岛屿,居住在这的业主,除了观赏伊通河水域风光,还能体验绿色健康的宜居生活。
名校、轨交、公园都配齐,商圈自然不会迟到。麦德龙、迪卡侬、中东港等大型商业环伺在项目周边,此外,还有集艺术欣赏、人文体验购物等于一体的新型商业青怡坊雲琅,和规模比肩好莱坞的影视大文旅项目——长春国际影都,供业主们吃喝玩乐购,一站式体验!
宸院系力作
新中式产品、极高性价比
在这个被顶级配套包围的地块,融创大河宸院打造86-140平小高产品,作为宸院系的又一力作,从规划、配套到户型设计,都十分重视舒适性,其延续了宸院系定位高端产品的精工细作,也呈现出了因地制宜的新中式产品精髓。

融创大河宸院毛坯精装都有,预计2022年底交付。毛坯均价约11000元/平,精装均价约12500元/平,其毛坯均价低于周边大多数楼盘毛坯房的价格,而产品、配套不差,其性价比不言而喻。目前正式营销中心已经开放,可以前往咨询。
户型点评:
86平两室两厅一卫

标准的两室户型,整体较为方正,南北通透,餐客厅一体化设计,主卧、客厅双飘窗,L型转角厨房,布局合理。
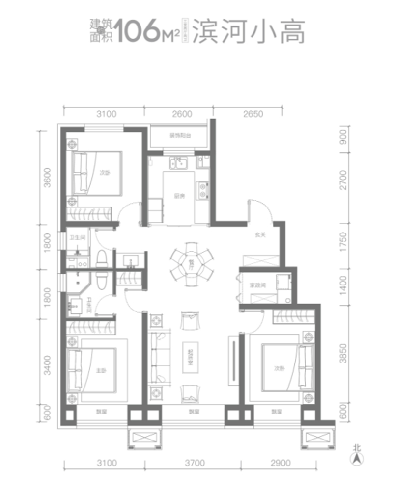
106平三室两厅两卫

功能性较强的小三室户型,入门独立玄关设计。
U型厨房,双卫还带窗户,其中客卫打造干湿分离设计,高效方便。
还带有专门的家政间,可以用来存放大型杂物。
123平三室两厅两卫


